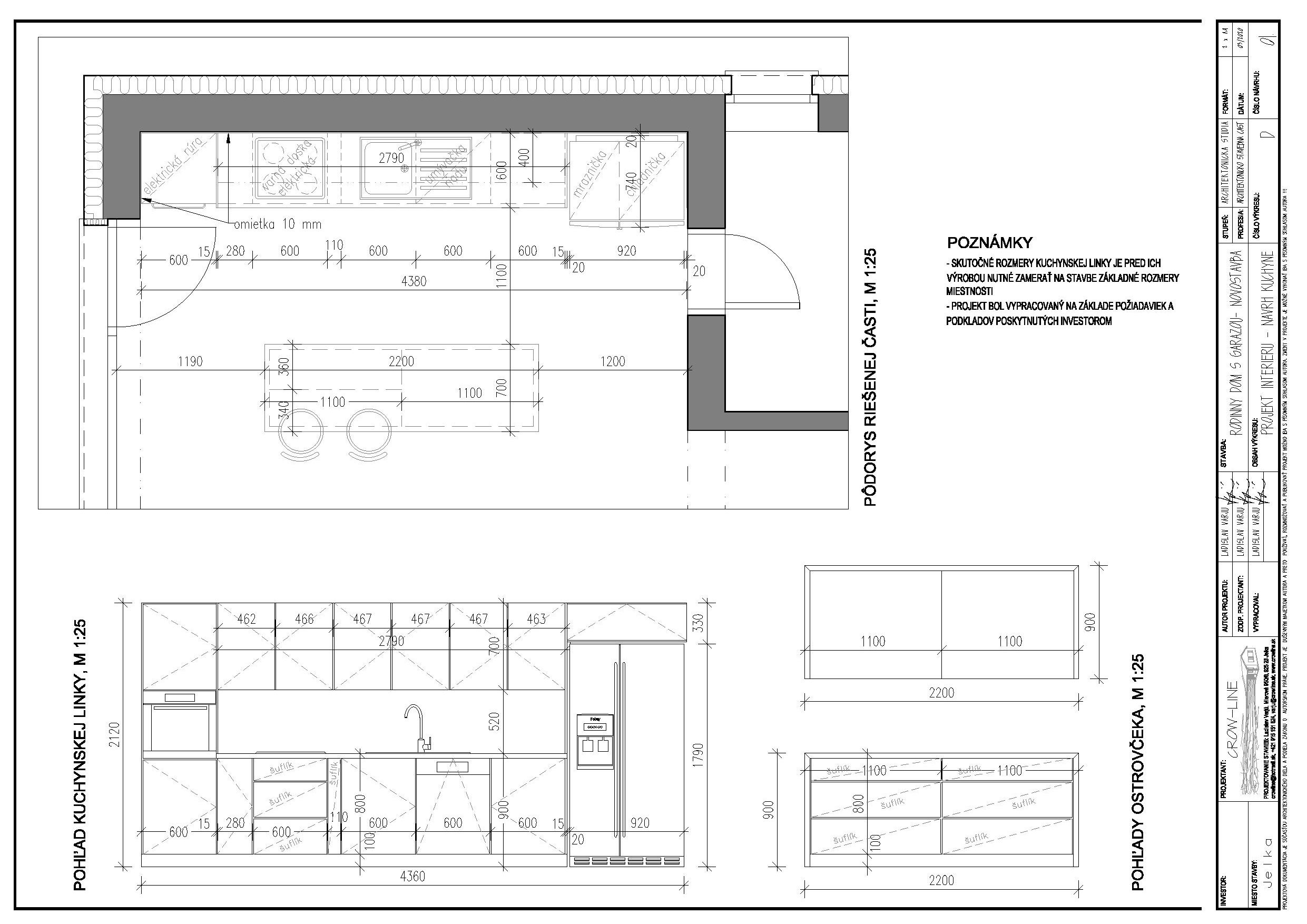
Klienti mali predstavu farebne živej, ale zároveň dizajnovo čistej minimalistickej kuchyne. Zvolili si zelenú matnú farbu v kombinácii s antracitovou. Pracovný pult a bočnice sú z dubového laminátu. Spotrebiče v čiernom prevedení ako aj zástena z keramického obkladu (Chevron Wall Black Matt), drez, batéria a čierne skryté úchytky, elegantne vyniknú.










